The house pictured above was built for David Green in 1853, the second in a line of three houses, all alike, built by John, David, and Jesse Green in Dayton. For biographical information on David Green, see here.
There surely was a previous house on this site. David bought the land from his father in 1842, at age 22, although he may have continued to live at home for a few years. He probably built a house for his new bride, Mary Stadden, when they married in 1847. In any case, in 1853 the house pictured above was built. It was a nine room house, four rooms per floor in the two-story portion and a kitchen extension.
When they moved into the new house they had 3 children, Alice, George, and Ella. Another seven children were born to them, who grew up living next door to their cousins, Jesse’s children.
An upstairs bedroom in this house produced Dayton’s only newspaper. One of the sons, Charles, had a little printing press and he was editor, reporter, printer & everything and he called it “The Dayton Enterprise”. There is only one known copy.
After David’s death, Mary stayed on in the house until some time in the 1890s. The house was tied up in the estate settlement of the man who had purchased the mortgage to the house. It was finally sold to E. A. Dallam in 1904.
Edward A. Dallam was born in Iowa and moved to Whiteside County, Illinois by age 13 where he worked at farming. He suffered from asthma, however, and gave up farming. He moved to Ottawa and opened a store on Main street where he sold notions, crockery, and tinware. In 1892 his wife, Lucy Ann Sapp, died. Three years later he married Winifred Talbot, in Ottawa, and they lived in South Ottawa, where he kept the store and also worked as a painter.
In 1904, when he bought the house, they moved to Dayton. Winifred was a frequent hostess, entertaining the Ladies’ Aid Society, the Dayton Womans’ Club and many other friends. When the J. S. club picnicked there, dinner and supper were served on the spacious lawn, and the day spent having a rousing good time.
In 1919 they decided to move back to Ottawa and he advertised in the Free Trader on March 5 as follows:
Ralph Green bought it and later gave it to his daughter, Grace, for a wedding present. The pictures below show the house as it was in 1937, when Grace and Charles Clifford began remodeling it.
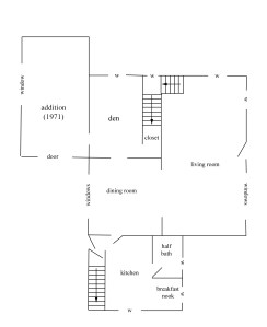
They changed it extensively, throwing the two east parlor rooms into one large living room and moving the staircase from the center of the house to one side. The old kitchen was torn down and a new one added.


Grace Clifford kept up the tradition of entertaining — The Dayton Homemakers, the Dayton Womans’ Club, the Ottawa AAUW, and large family gatherings were held here at Christmas, Easter, Valentine’s Day, Memorial Day, and on many other occasions.

The Cliffords sold the house in 2000 and retired to Ottawa.




















